人にやさしい未来空間設計

お問合せ
0942-78-6960

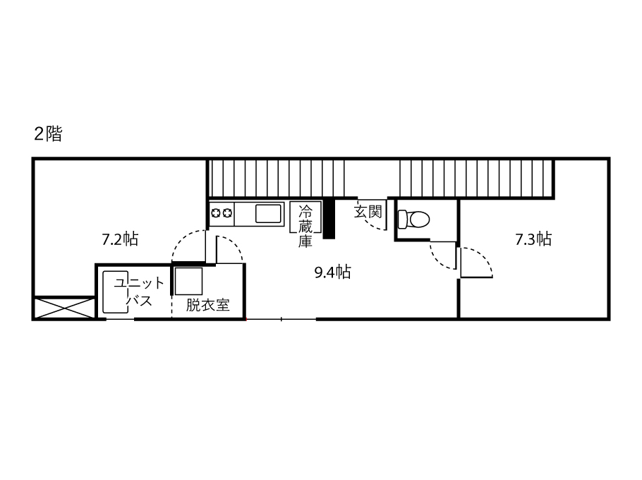
上祥ビルNo.13 2階

上祥ビルNo.13 2階

テナント情報

住所 〒830-0017 福岡県久留米市日吉町13-57 2F
営業時間 準備中です。
TEL 準備中です。
店休日 準備中です。

Googleマップ